MCB皮带上料系列

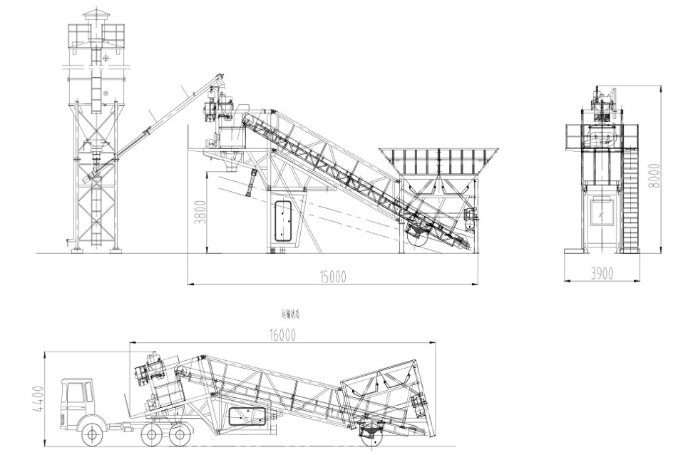
MCB 移动式皮带上料系列规格:

点击下载 产品技术信息

 

移动式皮带上料系列混凝土搅拌站的突出特点:

1、采用半拖挂式设计,自带行走系统与标准牵引销,用一个车头即可将搅拌站拖走。
2、转移场地快捷,转移工地后几小时可以安装完毕,达到正常使用要求。
3、整机免基础设计,用户只需做一个硬化平整的地面即可。
4、整机模块化设计,满足集装箱运输要求,安装快捷。
5、搅拌主机采用强制式双卧轴主机,具有搅拌效率高,搅拌范围广,搅拌出的混凝土质量好等特点。6、粉料及液体计量系统采用三点压式电子传感器,骨料计量采用四点吊挂电子传感器,计量精度高7、电气控制系统采用全自动控制,并配有电脑、打印机等设备,主线路采用快插接头,拆装快捷。

 

MCB移动式搅拌站2
MCB移动式搅拌站1
MCB局部-1
MCB局部-2
MCB

产品中心 /PRODUCT

| 产品中心

您当前所在位置:

首页    混凝土搅拌站    皮带上料式搅拌站    MCB皮带上料系列